string(4) "3073"

Автоматический угольный котел 0.2 МВт в Архангельске

Версия
для печати
В наличии на складе Цена в рублях с НДС 808 000
Получите скидку
у менеджера
Цена на автоматический угольный котел 0.2 МВт с доставкой от 808 000 рублей с НДС
Вид топкиРетортная, Автоматическая
Максимальная тепловая мощность, МВт0.2
ТопливоТвердое, Уголь
Отапливаемая площадь, м²1200-2200
Доставка ТК в г. Архангельск и по России
Безналичный расчет
Подобрать котел по мощности
Опросный лист
Эту продукцию можно
купить в лизинг
  • Технические
    характеристики
  • Описание
    товара
  • Комплект
    поставки
  • Дополнительно
    потребуется
  • Подключение и
    монтаж
  • Сертификаты и
    гарантии
  • Отзывы о
    продукции
  • Видео
    обзор
  • Подбор
    котла
  • Эффективно работает на каменном и буром угле
  • Размеры сжигаемых кусков топлива до 10 см
  • Работает без дымососа
  • Надежная автоматика промышленного исполнения
  • Штатное автоматическое золоудаление

Технические характеристики автоматического угольного котла 0.2 МВт

Тип Котел КВа КБ
Тип отопительного котла Твердотопливный
Бренд HeatExpert
Марка Котел КВа КБ 0.2 МВт
Вид топки Ретортная, Автоматическая
Максимальная тепловая мощность, МВт 0.2
Максимальная тепловая мощность, кВт 200
Максимальная тепловая мощность, Гкал 0.17
Топливо Твердое, Уголь
Диапазон регулирования мощности, % 30-100
Диапазон регулирования мощности, кВт 60-200
Низшая теплота сгорания проектного топлива, кКал/кг 5230
Влажность топлива, % 30
Фракционный состав топлива, мм от 15 мм до 50 мм (семечко, мелкий орех), допускается применение кусков до 100 мм до 10%
КПД котла на УГЛЕ, не менее, % 80
Расход УГЛЯ среднечасовой за отопительный сезон, кг/ч 24
Расход УГЛЯ при максимальной нагрузке котла, кг/ч 42
Расход условного топлива, кг/ч 31
Срок автономной работы при минимальной нагрузке до 4 суток
Срок автономной работы в среднем за отопительный сезон 2 суток (48 часов)
Срок автономной работы при максимальной нагрузке котла 25 часов
Максимальная температура воды на выходе из котла, °C 115
Минимальная температура воды на входе в котел, °C 55
Давление воды, МПа (кгс/см²) 0.6 (6)
Номинальный расход теплоносителя, м³/ч 7
Расход теплоносителя через котел min-max, м³/ч 6-9
Гидравлическое сопротивление при номинальном расходе, МПа (кгс/cм²) не более 0.07 (0.7)
Аэродинамическое сопротивление, Па (мм. вод. ст.) 15 (1,5)
Разряжение в топочной камере, Па (мм. вод. ст.) 20-40 (2-4)
Объем уходящих газов, м³/ч 850
Температура уходящих газов, не более, °С 250
Тяга Естественная
Водяной объем котла, л 97
Объем топочной камеры, м³ 0.46
Объем бункера, м³ 0.8
Объем штатного бункера (насыпная плотность 1300 кг/м³), кг 1040
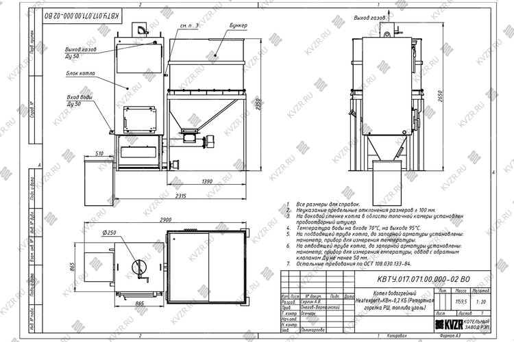
Размер топочной камеры, длина*ширина*высота, мм 690х690х965
Присоединительные размеры по водяному тракту, Ду 50
Присоединительные размеры газохода уходящих газов, ширина*высота / сечение, мм/м² Ду 250/0.05
Габаритные размеры блока, длина*ширина*высота, мм 960х960х1800
Габаритные размеры установки, длина*ширина*высота, мм 1380х2270х2260
Масса, кг 1000
Конструкция котла водотрубная, вертикальная
Количество контуров Одноконтурный
Размещение Напольный
Тип камеры сгорания Закрытый
Управление Электронное
Принцип работы твердотопливного котла Классический
Энергонезависимый Нет
Тип питания Трехфазное
Встроенный циркуляционный насос Нет
Встроенный расширительный бак Нет
Энергоэффективность Высокая
Отапливаемая площадь, м² от 1200 до 2200
Отапливаемый объем, м³ от 3500 до 6500

Автоматический угольный котел 0.2 МВт

Автоматический угольный котел 0.2 МВт предназначен для отопления коттеджей, загородных домов, складских, ремонтных баз, офисных зданий, производственных помещений, СТО, теплиц и животноводческих комплексов площадью 1200 до 2200 м2. Данная модель позволяет обеспечивать вас теплом и горячей водой, без необходимости постоянного присутствия кочегара в котельной.

Уникальная система подачи топлива и горелки позволяют работать на каменном и буром угле фракцией до 100 мм.

Особенностью угольного котла с автоматической подачей топлива нашего производства является работа на каменных и бурых углях фракцией топлива от 0 до 100 мм. На сегодняшний день это уникальное предложение на рынке отечественных автоматических отопительных котлов. Низкая требовательность к фракции топлива, позволит вам не переплачивать, за сортовой уголь и не беспокоится о его наличии в вашем регионе или населенном пункте. Вам не понадобится дополнительно приобретать угольную дробилку и самостоятельно заниматься подготовкой топлива для сжигания. Для предотвращения зависания топлива в бункере предусмотрен штатный ворошитель.

Экономичность работы котла с автоматической подачей топлива

Автоматический котел 0.2 МВт работает без дымососа, дымовой трубы достаточно 6 метров. В случае установки котла в пристроенной котельной, высота трубы должна быть выше кровли прилегаемого здания.

Работа вентилятора поддува регулируется частотным приводом, что экономит потребление электроэнергии.

Эффективный теплообменник

Развитая поверхность нагрева обеспечивает максимальный теплосъем и высокий КПД. При разработке нашего оборудования мы применяем наиболее эффективную конструкцию теплообменников – водотрубную. Теплоноситель двигается по панелям топочной камеры с высокой скоростью, делая многократные повороты по всему периметру трубных панелей. В верхней части котельного блока вода поступает в трубы, расположенные в шахматном порядке. Шахматное расположение позволяет максимально омывать поверхности нагрева и отдавать тепло теплоносителю. Высокая скорость воды в трубах сдерживает процессы отложения накипи в поверхностях нагрева и исключает их перегрев.

Конструкция теплообменников рассчитана на давление 3 кгс/см2 – это позволит вам не беспокоится о возможных течах в котле, вызванных гидроударами в системе.

Простая и функциональная автоматика

Удобная и функциональная панель управления, позволяет с легкостью настраивать режимы работы автоматического котла, в зависимости о топлива, погодных условий и требований температурного режима в ваших помещениях.

При кратковременном перебое с электричеством котел автомат 0.2 МВт продолжает работать в том же режиме, что и до перебоя.

Управление рециркуляционным насосом обеспечивает отсутствие конденсата на поверхностях нагрева при низкой нагрузке.

Система безопасности котла автомата 0.2 МВт

Имеется автономная система пожаротушения, обеспечивающая безопасность даже при перебоях в системах электроснабжения.

В системе управлении шнековой подачи автоматического котла предусмотрена защита от заклинивания шнека при попадании породы и иных твердых включений.

Бункер автоматического котла на угле 0.2 МВт

Котлы с автоматической подачей угля мощностью 0.2 МВт г Архангельск в эксплуатации максимально просты и удобны. Геометрия бункера исключает зависание топлива. Бункер вмещает в себя не менее 400 кг топлива. В зависимости от температуры наружного воздуха, температурного режима в помещении и выбранных режимов работы на панели оператора, этого количества хватает до 7 дней «на минимальной нагрузке», в начале и окончании отопительного сезона. Дополнительную экономию топлива вы можете получить, тонко регулируя нагрузку в зависимости от времени суток и недели. Особенно это актуально для производственных, промышленных и офисных помещений, где можно снижать температуру в ночное время, и в выходные и праздничные дни.

Прежде чем купить автоматический котел на угле, на заводе в Архангельске необходимо уточнить расположение бункера - правое или левое, в последствие самостоятельно переустановить его невозможно.

Автоматическое золоудаление

Встроенный шнек автоматически удаляет образующуюся золу и шлак из котла в емкость - накопитель. Вам не понадобится останавливать и очищать котел от золы и шлака. Достаточно периодически очищать емкость для шлака, находящуюся рядом с котлом.

Комплектация

Стандартная комплектация автоматического котла 0.2 МВт производства Котельный завод РЭП:

  • Корпус котла
  • Топливный бункер
  • Золоудаление
  • Система подачи топлива в комплекте с горелкой, чугунной ретортой, шнеком, электродвигателем, редуктором
  • Комплект запорной и предохранительной арматуры
  • Приборы КИП и А
  • Вентилятор наддува
  • Комплект автоматики котла
  • Комплект инструмента для чистки
  • Паспорт и руководство по эксплуатации котла

Дополнительные опции GSM модуль.

GSM модуль - позволяет контролировать состояние котла и отопительной системы, оповещает о нештатных ситуациях при работе котла. Повышает надежность работы котельной, так как сразу информирует Вас о любых сбоях в работе.

Цена автоматического угольного котла 0.2 МВт включает в себя котельный блок, шнековую подачу топлива, ретортную горелку, бункер, запорную арматуру и КИП в пределах котла, вентилятор поддува и предохранительные клапаны. Ниже приведена подробная информация.

Дополнительное вспомогательное оборудование для работы автоматического угольного котла 0.2 МВт

Для эффективной и надежной работы автоматического угольного котла 0.2 МВт в вашей котельной вам потребуется дополнительное оборудование - автоматика ЩУК, дымосос, насос сетевой и подпиточный, золоуловитель (по желанию), газоходы и переходники для газового тракта, дымовая труба. Мы предлагаем рассмотреть типовые варианты комплектации.

В случае если у вас на объекте уже имеется насосное и тягодутьевое оборудование, мы можем проверить совместимость автоматического угольного котла 0.2 МВт нашего производства и вашего оборудования.

Можем изготовить нестандартные узлы для выполнения быстрого монтажа котла - газоходы и узлы обвязки.

Типовую схему монтажа котла вы можете посмотреть во вкладке схемы подключения и монтаж.

Полностью автоматическое регулирование работы котла:

  • ручной розжиг котла;
  • автоматическое поддержание заданной температуры;
  • погодозависимое регулирование;
  • контроль уровня топлива в топливном бункере (при использовании пеллет);
  • автоматическое пожаротушение, в случае возгорания в шнеке;
  • возможно подключение удаленного контроля параметров работы котла посредством GSM, Ethernet, WiFi модуля (доп опция)

Цена 340 000 рублей с НДС

Используется в качестве подпиточного насоса в промышленных отопительных котельных

Цена 44 600 рублей с НДС

Используется в качестве подпиточного насоса в промышленных отопительных котельных

Цена 43 900 рублей с НДС

Используется в качестве сетевого насоса в промышленных отопительных котельных

Цена 124 000 рублей с НДС

Схемы подключения и монтаж автоматического угольного котла 0.2 МВт

Водогрейный твердотопливный стальной отопительный автоматический угольный котел 0.2 МВт, предназначен для получения горячей воды номинальной температурой на выходе из котла от 95 до 115 °С рабочим давлением до 0,6 (6,0) МПа (кгс/см), используемой в системах централизованного теплоснабжения на нужды отопления, горячего водоснабжения. Устанавливается в производственных, промышленных и отопительных котельных.

Схема подключения и монтажа водогрейного промышленного автоматического угольного котла 0.2 МВт
Смотреть
Скачать

Схема подключения и монтажа автоматического угольного котла 0.2 МВт

Монтаж водогрейного автоматического угольного котла 0.2 МВт и вспомогательного оборудования в котельной должно производиться в соответствии с проектом и учетом требований СП 89.13330. 2016 «Котельные установки. Актуализированная редакция СНиП II-35-76» и «Правил устройства и безопасной эксплуатации паровых котлов с давлением пара не более 0,07 МПа (0,7 кгс/см2), водогрейных котлов и водоподогревателей с температурой нагрева воды не выше 388 К (115 С). Правильный монтаж котла – залог его надежной и долгой работы.

Чтобы правильно подключить автоматический угольный котел 0.2 МВт в котельной необходимо оставить проемы для обслуживания оборудования во время эксплуатации. На представленной здесь схеме указаны их минимальные размеры. Кроме того, в данной примерной схеме монтажа водогрейных котлов и оборудования указан перечень минимально необходимого вспомогательного оборудования для правильной работы котла.

К вспомогательному оборудованию при подключении промышленного водогрейного твердотопливного котла относят - щит управления котлом, насос циркуляционный, насос подпиточной воды, бак запаса воды, расширительный мембранный бак, дымовую трубу, систему газоходов и дымосос, золоуловитель (по желанию).

В случае если подпиточная вода не соответствует по своим характеристикам требованиям к питательной воде, необходимо предусмотреть систему водоподготовки котловой воды.

Для котельных 1 категории, являющиеся единственным источником тепла системы теплоснабжения и обеспечивающие потребителей первой категории, не имеющих индивидуальных резервных источников тепла, необходимо предусмотреть полное резервирование оборудования – подключение 2 (двух) котлов, насосов, ТДМ. Пунктиром обозначено оборудование для резервирования.

Для котельных 2 категории, включающие в себя промышленные и производственные котельные резервирование нужно предусматривать по необходимости.

Схема тепловая котла
Смотреть
Скачать

Тепловая схема подключения котла

Образец тепловой схемы подключения оборудования в котельной приведен на данной схеме. При эксплуатации очень важно грамотно осуществить подключение оборудования, установить все контрольно измерительные приборы, для контроля параметров работы котельной и запорную арматуру для оперативного переключения потока теплоносителя при плановой или аварийной остановке оборудования. Данную схему можно использовать как пример для разработки под свой объект или заказать у нас разработку индивидуальной схемы для вашей котельной.

Дополнительные услуги

Сертификат и качество автоматического угольного котла 0.2 МВт HeatExpert

Водогрейные котлы производства Котельный завод "РЭП" соответствуют строгим стандартам качества и безопасности. Завод производит котлы в соответствии с требованиями ГОСТ 30735-3001 по Техническим Условиям завода.

Котлы имеют сертификаты соответствия Техническим регламентам Таможенного союза:

  • ТР ТС 010/2011 «О безопасности машин и оборудования».
  • ТР ТС 032/2013 - «О безопасности оборудования, работающего под избыточным давлением».
Сертификат на водогрейные котлы .jpg
Сертификат на водогрейные котлы
Знак товарный на водогрейные котлы HEATEXPERT .jpg
Товарный знак на водогрейные котлы HEATEXPERT

Отзывы о продукции

Отзыва о товаре пока нет, будьте первыми!

Котельный завод производит автоматический угольный котел для отопления мощностью 0.2 МВт для производства, сушильных камер, теплиц и промышленных твердотопливных водогрейных котельных.

Смотреть видеообзор на
Тип здания
Регион
Населенный пункт
Вид топлива
Наружный объем здания (м3)
Отапливаемый подвал

Как подобрать мощность котла для вашего объекта

Подобрать мощность котла по площади важно учитывая не только площадь и объем здания, но и тип зданий и климатические данные региона.

На нашем сайте калькулятор расчета мощности котла учитывает тепло, требуемое на возмещение тепловых потерь через строительные конструкции и потери, вызываемые инфильтрацией (проникновением) наружного воздуха, через их неплотности и периодически открываемые двери.

Наружный строительный объем здания должен определяться умножением площади горизонтального сечения, взятого по внешнему обводу здания на уровне первого этажа на полную высоту здания, измеренную для панельных зданий: от уровня чистого пола (нулевой отметки) до верхней плоскости теплоизоляционного слоя чердачного покрытия, для остальных строений от уровня земли.

Расчетная температура воздуха в отапливаемых зданий принимается в зависимости от типа и назначения здания:

  • Гостиница, общежитие, административное здание, жилые дома + 20 °С;
  • Детские сады, ясли, поликлиники, амбулатории, диспансеры, больницы + 22 °С;
  • Высшие и средние специальные учебные заведения, общеобразовательные школы, школы интернаты, лаборатории, предприятия общественного питания, клубы, дома культуры + 16 °С;
  • Театры, магазины, пожарные депо + 15 °С;
  • Кинотеатры + 14 °С;
  • Гаражи + 10 °С;
  • Бани + 25 °С.

В случае если требуется отопление различных по типу зданий, теплопотребление каждого считается отдельно, полученные значения складываются и подобрать мощность котла нужно в соответствии с общей суммарной мощностью каждого отдельно стоящего задания.

Климатические условия вашего региона принимаются в соответствии с СП 131.13330 Строительная климатология. Данные по всем регионам России занесены в наш калькулятор расчета мощности котла.

Подобрать мощность котла по площади с учетом потребностей объекта в тепле на вентиляцию и горячую воду возможно только с более детальным расчетом. Его вы можете заказать в отделе сбыта котельного завода отправив заявку на электронный адрес sb@kvzr.ru или позвонив по телефонам (38-52) 29-97-41, 29-97-42.

Вопрос-ответ

  • Технические
    характеристики
  • Описание
    товара
  • Комплект
    поставки
  • Дополнительно
    потребуется
  • Подключение и
    монтаж
  • Сертификаты и
    гарантии
  • Отзывы о
    продукции
  • Видео
    обзор
  • Подбор
    котла
Документы завода
  • Сертификаты завода
  • Членство в СРО
  • Аттестованная технология сварки
  • Патенты на котельное оборудование
  • Товарные знаки
Смотреть все документы
Сертификат на водогрейные котлы на твердом и жидком топливе
Сертификат на водогрейные котлы на газе и жидком топливе
Сертификат на котлы отопительные паровые КП
Сертификат на топки
Сертификат на щиты управления
Сертификат на скиповые подъемники
Сертификат на золоуловители (циклоны)
Сертификат на конвейеры скребковые
Сертификат на дробилки
Сертификат на клапаны предохранительные
Сертификат на бункер-накопитель механизированный
Сертификат на автоматику газовых горелок
Сертификат о происхождении товара форма СТ-1
Членство в СРО
Членство в СРО
Аттестованная технология сварки
Свидетельство аттестованной технологии сварки
Патент на отопительный котел
Патент на водогрейный котел
Патент на топку водогрейного котла
Патент на водогрейный газовый котел
Патент на водогрейный котел
Патент на топочное устройство твердотопливного котла
Патент на водогрейный котел
HEATEXPERT товарный знак
KVZR товарный знак
STEAMEXPERT товарный знак
Другая похожая продукция
Котел КВр 0.2 К HeatExpert
Вид топкиРучная, Колосники
Максимальная тепловая мощность, МВт0.2
ТопливоТвердое, Уголь
Отапливаемая площадь, м²1200-2200
353 000 р. Цена с НДС
Котел КВД-0.2 МВт на дровах
Вид топкиРучная, Колосники, ОУР
Максимальная тепловая мощность, МВт0.2
ТопливоТвердое, Дрова
Отапливаемая площадь, м²1200-2200
428 000 р. Цена с НДС
Котел уголь дрова
Вид топкиРучная, Колосники, ОУР
Максимальная тепловая мощность, МВт0.2
ТопливоУголь, Дрова, Твердое
Отапливаемая площадь, м²1200-2200
380 000 р. Цена с НДС
Котел 200 кВт без дымососа
Вид топкиРучная, Колосники
Максимальная тепловая мощность, МВт0.2
ТопливоУголь
Отапливаемая площадь, м²1200-2200
353 000 р. Цена с НДС
Котел на опилках
Лизинг
Вид топкиВихревая, Автоматическая
Максимальная тепловая мощность, МВт0.2
ТопливоОпилки
Отапливаемая площадь, м²1200-2200
1 364 000 р. Цена с НДС
Котел на древесных отходах
Вид топкиРучная, Подовая
Максимальная тепловая мощность, МВт0.2
ТопливоТвердое, Дрова, Древесные отходы естественной влажности
Отапливаемая площадь, м²1200-2200
488 000 р. Цена с НДС
Пеллетный котел 200 кВт
Лизинг
Вид топкиРетортная, Автоматическая
Максимальная тепловая мощность, кВт200
ТопливоПеллеты
Отапливаемая площадь, м²1200-2200
770 000 р. Цена с НДС
Автоматический угольный котел 0.15 МВт
Лизинг
Вид топкиРетортная, Автоматическая
Максимальная тепловая мощность, МВт0.15
ТопливоТвердое, Уголь
Отапливаемая площадь, м²860-1600
794 000 р. Цена с НДС
Автоматический угольный котел 0.25 МВт
Лизинг
Вид топкиРетортная, Автоматическая
Максимальная тепловая мощность, МВт0.25
ТопливоТвердое, Уголь
Отапливаемая площадь, м²1500-2600
827 000 р. Цена с НДС
Вы просматривали эти товары
Автоматический угольный котел 0.2 МВт
Лизинг
Вид топкиРетортная, Автоматическая
Максимальная тепловая мощность, МВт0.2
ТопливоТвердое, Уголь
Отапливаемая площадь, м²1200-2200
808 000 р. Цена с НДС
Котел с РПК
Лизинг
Вид топкиМеханическая, РПК
Максимальная тепловая мощность, МВт0.5
ТопливоТвердое, Уголь
Отапливаемая площадь, м²3900-5500
735 000 р. Цена с НДС
217 100 р. Цена с НДС
Парогенератор 1600 кг пара на газе
Лизинг
Производительность, кг/ч1600
ТопливоГаз
Температура пара, не более, °C170
Давление пара, не более, МПа0.9
1 676 000 р. Цена с НДС
background